不到10平米的房间,我装下了自己的全部……
如果你玩过《我的世界》,那么你一定对「火柴盒」印象深刻。尽管它可能并不大,但对很多人来说,那是我们在新世界的第一个家。回到现实生活中,很多人的租住的房间其实也并不比火柴盒大,却承载着很多年轻的梦。
我自己在广州租下了一套并不算小的两居,但卧室的面积却因为起居室的挤占而显得并不宽敞,算得上是我住过最小的房间。尽管它已经是主卧,但总共也只有不到 10 平米的面积,那么,它是如何容纳下一张一米八的大床和桌子,以及一米六的大衣柜的?
卧室所肩负的「责任」
尽管我希望未来能租到一个更大的房子,可以在起居室里真正按照我自己的想法来安排这一切,但现在的起居室作为我和室友的公共空间,我们彼此都默契地不让自己的私人物品去挤占这里,尽量去保持它的宽敞和通透。
这张图片剧透了下一篇文章的主题🌝
如此以来,卧室便实际承载了我的私人工作和生活,以及绝大部分的用餐和娱乐。然而要在不到 10 平米的空间内实现这些目标,并考虑动线的合理性,对我来说是个不小的挑战。
从硬装说起
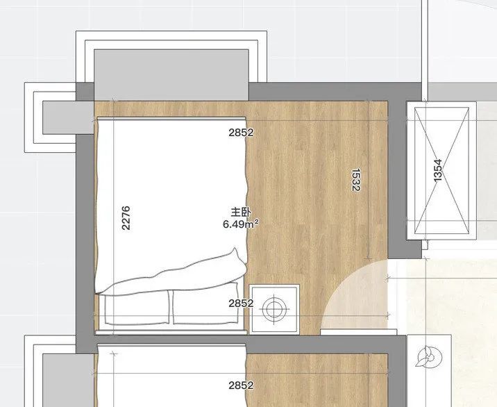
从户型图来看,房间的整体面积为 227.6 × 285.2 ≈ 6.5 平方米。但经过我的测量,发现实际空间要比它更大:
也不知道是户型图错了还是有意为之,总之我觉得自己还是赚了。
如果算上飘窗,房间的面积约在 13 平方米左右。但由于飘窗部分并不能实际用于摆放物品,因此我可用的地面空间为 10 平方米上下,整体的空间结构近似于一个正方形。
另外,从户型图推荐的物品摆放位置来看,床是正对着飘窗的。这么做对于纯卧室而言的确有优势,一是可以留给走道的空间较大,且动线能够直通飘窗。二是每天醒来拉开窗帘就能直面天空,无论是阳光还是阴雨都可用尽收眼底。
但显然这种方式并不适合我。
第一天搬进来时,房东已经在这里留下了一张双人床和衣柜。我用卷尺测量之后得到了这些具体数据:
- 床:180cm × 220cm;
- 衣柜:160cm × 180cm × 50cm。
其实,房间里还有一张带有柜子的小化妆桌。我猜测,屋内的软装应该是房东直接购置的套装,无论是床、化妆桌还是起居室的电视柜、餐桌、沙发茶几,均是一致的风格。我实在是不喜欢那种欧式复古宫廷风,且那张化妆桌的空间非常小,长度仅为一米,放下我的显示器之后就无法满足其他使用需要,就更不必说我还有化妆的需求了。
毕竟是房东的物品,我们并不能随便丢弃,但好在这个问题很快就被解决了。原来租住在这里的是一对情侣,因此次卧一直都被当做杂物间和衣帽间使用,并没有桌子,而室友表示能接受桌子的长度,于是我们便合力将这张桌子移动到了次卧。
那么,现在我能实际自由利用的空间也就可以粗略计算出来:
10.2 -(1.8 × 2.20 + 1.6 × 0.5)= 5.44 平方米
但是千万不能忽略的一个问题是,门开关时划出来的扇形区域,其实也不能算作可用空间。而有趣就有趣在,房间门的位置稍微外移了一些,让渡了一部分空间。
不要走一冲动就上的弯路,及时用你熟悉的东西先规划
不少人(包括我)都会出现的一个问题是,在还没有规划的的时候就直接将物品搬进室内,立刻「开摆」。但往往这样会出现各种你想不到的意料之外,最频发的就是「位置不够」。
这事我也犯过错。在我换大桌子以前,旧桌子的宽度是 140cm。但我仅靠着所谓的直觉,就决定把桌子横向摆放在床的旁边,然而实际将桌子移到对应位置后,却发现床板靠背的边缘处凸出来一块,导致桌子无法放入。我只能又大费周章,一个人将所有的物品复原。
此后,我仍然犯过类似的错误,为了贪图少搬东西,直接在房间里开始摆弄。结果虽然成功了,但我和室友却累的筋疲力尽。而如果我们一开始就把桌子先搬到起居室腾出空间,那么调整起来就要方便很多很多。
一些过来的经验告诉我,在更换房间软装摆放位置,尤其是大件物品的时候,务必先用你熟悉的东西先规划。只需要准备一把卷尺,将房间各个物品占据的面积测量出来,然后将它复原到 iPad 或是电脑中。例如我习惯使用且操作顺手的软件是 Sketch,就可以直接用矩形框来代替对应的物品和空间。
一般而言,我们只需要绘制平面俯视图即可,不需要去考虑高度。有了模拟图形后,你就可以在设备上先模拟摆放的效果,看看房间的大小能否匹配想要的摆放方式。
比如把桌子放上面,能放得下,但是过道只有 28cm,放不下椅子,转身都困难
但要提醒的是,卷尺测量出来的结果并不会特别精确,因此在物品的取值可以往上多算 0.5 -1cm 的余量,而房间的长宽往下算 1cm。同时切记「精准匹配」的陷阱,往往在平面图形上能够放下的物品,在现实中却无法放置的情况。
至于要不要用 AR 来测量?我的答案很明确,不要。
走道和动线很重要
关于走道,我的建议是根据个人的身材而定,测量身体的最宽处后加上 20cm 即可符合最低的走动和转身。如果走道太小,不仅会走动不便,拥挤的感觉也会扑面而来。当然,如果你并不不需要在房间里塞下这么多东西的话,那么留出一片能够席地而坐的区域,并添置一个懒人沙发和落地灯,铺上地毯,能够大大地提升卧室的氛围感。
大多说情况来说,房间有一条主要的走道足矣。不过我的房间则较为特殊,除了衣柜和床之间的区域外,工作桌和床也切割出来一条狭长的走道,二者交汇在进门处的地方。但好在两条走道的空间都是足够的,能够满足我转身和放椅子的需求。
另外就是动线。所谓的「动线」,可以简单理解为你在房间里做一件事情需要走过的线路。例如你早晨起床换衣服,然后洗漱收拾东西上班,那么合理的动线布局是床 → 衣柜 → (洗手间 →)包 → 物品 → 门。但如果关联区域隔得过远,就很容易要来回走动,消耗时间。
但现实往往不允许有如此理想的假设,我们总是要纠结今天穿什么,出门时要不要拿某件物品。所以经过我的一些实际经历,我觉将房间分为「功能区块」后用动线去连接是个不错的想法。例如将衣柜、全身镜、首饰柜这些物品摆放在同一片地方,形成自然的「仪容区」。这样一来即便我要来回往返,那么也就是两三步的事情。
不过我也有一个特例,就是我之前在 桌面分享 中提到的一块小地方:处在房间最角落的化妆区。按道理来说,它应该和上面的仪容区组团,但却被数码区硬生生在中间切开。
按照上面提到的逻辑,这个布局确实是有问题的。但不妨从自己实际的情况来考虑:本身平时需要化妆的场合也不多,更多时候只需要换衣服戴上耳饰就能出门。而且在那篇文章中我也提到,这样布置能给我最常使用的数码区一些呼吸感。
说到底,方便且高效地满足个人需求才是解决问题的核心。只要能够做到上面这一点,违背看似合理的抽象理论是大可不必担心的。
利用一切可以储物的空间
在储物的挑选中,能最大化空间利用率的无疑是斗柜。它通过增加高度和隔层来对物品进行收纳,在有限的面积中大大提高了杂物的「吞吐量」。而在对出租房进行装饰的时候,一个让我们头疼的问题就是「房东的旧物品如何解决」—— 借助斗柜的思路,我们可以在床底、衣柜底下(或顶面)和斗柜底下的储物空间来放置这些在租房期内基本不会用到的东西,如老旧的窗帘、搬家用的纸箱、大的包装盒等。
同样的,借助叠放的思路,我们也可以在已有的平面中进行「套娃」。比如我将空气净化器放在了衣柜旁边的小边桌上,这样不仅拥有了三层的储物空间,上面的一片地方也没有浪费。
在收纳这一块,很多人会选择宜家一些塑料的组合式收纳产品。这些主打低价和大容量的塑料产品确实好用,在刚出社会的那些年陪伴我们走过了好几个居所。不过后来随着搬家次数的增多,它们也渐渐暴露出来一些问题。其一是美观性不足。普遍来说,想要让大面积的塑料制品在家装中显得好看,是一件非常考验审美水平和室内设计的事情。我这种半吊子自然是不敢尝试的,总觉得有一些廉价感。
第二点是这些收纳盒的移动性普遍不佳。这里指的移动性是搬家、换房间等需要进行大面积或长距离移动的场景,这种时候一体式的收纳优势就体现出来了。别看他们占地面积不大,能够收纳的物品容量不容小觑。只需要统一将零碎的物品装进柜子里,用小推车就能一次性全部拉走,不用来回跑动。
布局无主灯照明
无主灯照明曾经在我的桌面分享那期提到过,这里我仍旧建议有条件的朋友们进行尝试。
纯粹在空间利用的角度上而言,我认为主光源照明有一个较大的问题:物体的表面被打亮了,但是被它们遮挡出的阴影会有非常大的亮度衰减,从视觉上和感受上进一步压缩了本就不大的房间面积。此时,无主灯照明就有一个很大的优势,通过「哪里不亮点哪里」,将房间内需要照明的地方按照你想要的需求来打亮,减少阴影带来的压抑感。
也许你会担心,工作、阅读等需要高照度的情况,无主灯照明的亮度不足怎么办?
但实际上,过去学生时代,绝大部分家庭都在使用主灯照明的时候,我们不也是会给自己加上一盏台灯吗?不瞒你说,如今我房间里最亮的光源是屏幕大面积显示的白色和屏幕挂灯。所以,解决这些问题的根本思路依旧还是上面说到的「哪里不亮点哪里」。
可以参考的思路
无主灯照明会给许多人一种「折腾起来好麻烦」的压力,甚至在他们的印象中,这是需要对硬装大动干戈之后才能实现的事情。诚然,从硬装上就预留无主灯照明的灯具位置是最有选择,但并不代表在租房的空间里就不能实现。下面我提供一些思路供你参考,你可以根据你的实际情况来自行判断。
首先,床底和床背板靠墙和靠地面的这两片区域是非常适合贴灯带的,其次是衣柜顶、桌底和斗柜的底部。它们不但满足了「只见光源不见灯」的基本要求,也能更好地利用地面和天花板的漫反射将灯光溢满整个房间。
用沙发举个例子
其次,你可以在一些不方便布置灯带的地方加上一些氛围灯照明,例如斗柜上平面和床头柜上。这些光源的约在房间高度的中央区域,可以跟地面和柜顶的光源形成很好的互补,照亮这些灯带无暇顾及的区域。
最后,如果你有落地的全身镜,那么你可以试试将灯带在镜子背后围上一圈 —— 相信我,效果非常让人心动。即使不在镜子的前,平时一样也能作为夜间的照明灯光来使用。
除了上面提到的这些区域外,你也可以考虑将光源放置在任何一眼看不到,但又靠近墙面或地面且有主灯阴影的区域,让灯光对着地面、墙壁或物品表面,利用它们的漫反射来帮你将光路分散。
灯带确实会贵,但值得花点钱,而且尽量选择智能产品
从成本上来说,灯带的价格必然要比一个主灯灯泡要高,何况一条还不够。但是也不用过于担心,目前淘宝上很多非智能单色灯带已经非常便宜,100 元预算布置一个 10 平米的房间已经绰绰有余。
假若你并不在意多灯联动或智能化控制,那么这些灯带就是不错的解决方案。如果收到货点亮之后发现颜色与你想要的有偏差,一定要及时退货或换货。自己已经花了钱,不要在这方面觉得「又不是不能用」。
但要从我个人的使用体验来看,有能力的话还是上智能化的灯光更加舒适,而且尽量选择同一家品牌的产品。这样一来,你就可以将灯光进行编组,统一在 app 内进行调色,根据不同的场景来点亮不同的区域或调节亮度,甚至是实现屏幕 / 音乐的声光同步。
房间里的各种灯
不过上智能化方案的话,钱包要出一点血是必然的。当然如果你不着急,或许可以试试等一下我在开发的灯带新产品。🌝
要不要加地毯?
地毯,堪称现代家居提升品质和逼格的首选物品之一。毛茸茸的触感搭配一盏好看的落地灯,廉价出租房瞬间也能变身精致小窝。而且从视觉上来说,地毯的毛糙表面可以大大减少房间内的镜面反射,让灯带的光线变得更加柔和均匀,进一步扩展视觉上房间的面积。
对我来说,10 平米的房间内,要全部铺设地毯的成本其实在我可接受的范围内。而且铺上地毯之后,我还可以在房间里尽情光脚撒野。
然而,就算地毯再吸引你,我也劝你收手。千万不要被一些精致的图片所蒙蔽,因为地毯的支出可不只是「买一块」这么简单,尤其是租的房子。而且后续的清理和维护,让人抓狂的程度是难以想象的 —— 尤其是一个布艺清洗机可不便宜。
如果我非要铺地毯呢?
实在是想要铺地毯的话,那我先建议你养成干湿分离和换拖鞋的习惯。对于中国家庭来说,很多人在室内的习惯都是一双拖鞋走天下,但铺了地毯之后就不能这么干了。阳台的灰尘、厕所的水渍和厨房地面的油污,都是地毯变脏的罪魁祸首。只有养成了上地毯前擦干脚或换干净拖鞋的习惯,才能最大程度减缓地毯变脏的速度。
如果你是在租房,那么最好还是在床边、衣柜边这些本身有光脚踩地面需求的区域,铺设一个与它相同长度的小面积地毯即可。这些地毯清洁起来相对方便,在浴室里用花洒和洗衣粉冲洗,拿到阳光底下晒干即可。
想要铺全屋地毯的话,轻先确定你能否抬起房间内的重物。而且铺设前最好先将房间清空,铺设完成后再将物品搬进来。在我看来,有全屋地毯需求的大多数还是已经购置房屋的人,所以自己家的话,建议还是找专业的服务商。另外,不要忘记购买一台布艺清洗机,这种大面积且被重物压住的地毯几乎是不可能取下来清洗的。
其实还有一个适合地毯的绝佳位置
还记得我一开说说的飘窗吗?这是一片在收纳上几乎无法利用的区域,无非只能躺在上面看看风景或书。然而在我看来,这里却是最适合铺地毯的地方。它面积不大,花费的成本不高,但对提升房间氛围感和幸福指数来说却有着非常好的作用。
一张做作的摆拍
这里我提供一个选购的小技巧。假如你和我一样把床放在飘窗旁边,那么可以挑一些和你床品或床垫颜色相近的地毯,从而在视觉上让床一直延伸到窗边,变相地将这块区域利用起来,拓展房屋的空旷感。
几乎不去的视觉盲区角落,就用来堆杂物吧
房间的飘窗有一片位于床后方的拐角区域,要到这里来需要跋山涉水,因此也不具备太多实用的价值。而且在大部分时间里,这里还是一个视觉的盲区,照明的意义也不大。
对于这种区域,我就拿它来当杂物的收纳区。这里用搬家的纸箱收纳了一些十分不常穿但又不舍得扔的冬季衣服,以及一些暂时用不到的物品。同时,箱子本身也可以利用起来,用来当做飘窗另一侧的靠背。
如果你的房间里也有类似的区域,不妨试试看。
结语
决定在这个地方落脚的原因,一开始无非是为了上班方便,恰好碰上了这个租金和环境都还不错的小房子。直到最近广州疫情肆虐,长时间不出门的我第一次用心去审视这个已经生活了快两年的家,一瞬间回过头来,「啊,竟然已经快两年了啊。」
躺在我床头的丁
某种程度来说,用心把家装饰得好看一些(即便是租来的),去思考怎样安排自己的生活,也是一种排解苦闷和社会性抑郁的方法吧。
原文链接
https://sspai.com/post/77031?utm_source=wechat&utm_medium=social
本文来自微信公众号“少数派”(ID:sspaime),作者:宛潼,责编:北鸮,36氪经授权发布。















